我的世界别墅设计(我的世界别墅设计图)
面积数百平米、拥有泳池的住宅,就能称作为豪宅、别墅吗?
答案当然"不是"!
还需要通过精心的装修设计,
才不会沦为"大而无当"的空间,变成空旷、冰冷的居所。

所以能否被当做豪宅、别墅视之,整体布局的规划、氛围的营造,以及满足屋主需求的功能装修,都在在关系着这套空间能否呈现出高大上的气息。

以下分享二套欧美豪宅(别墅)设计,看看设计师如因应空间条件,打造出令人惊艳的家居氛围!
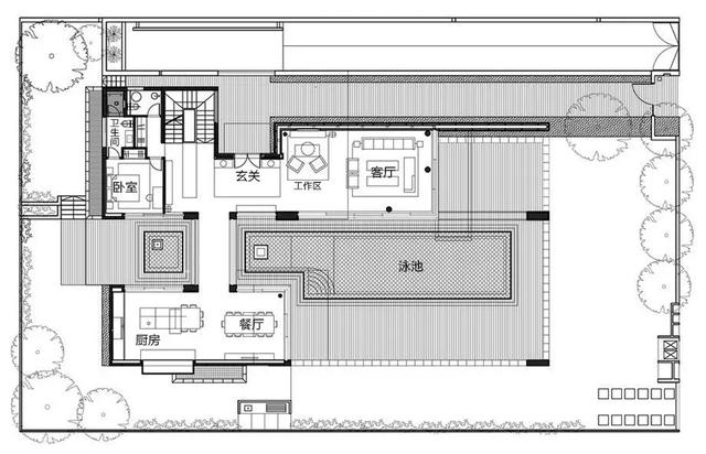
mediterranean / villa

▲ 一层

▲ 二层
光是外观,就能感受这套别墅的高质量;设计师未采取繁复的设计图腾,而是通过利落线条及建材质感,建构出充满现代风格的大气氛围,让人不禁要多看几眼,而且设计上还有许多巧思,包括:
将阳光及微风纳入设计
凯撒利亚为濒临地中海的以色列城市,因此设计师特别考虑了房屋的方位,让这套别墅除了享受温暖的阳光,也能轻易将来自地中海的微风引入室内,营造舒适效果。


其次,建筑的部分外墙覆盖着铝质建材,除了赋予美学作用,极佳的绝缘功能,也有助于减少屋内冷、暖空气流失,维持相对恒温的效果,兼具节能作用。

模糊界线,一体式布局
在营造舒适及低奢的前提下,室内、外空间被定义为"一个整体",也就是"模糊化"内、外部的界线,让视觉空间极大化。

做法就是使用玻璃隔断取代传统的混凝土墙壁,并利用游泳池的远景,创造出无限延伸的视线错觉;因此从室外往内部看,水面不仅延伸了墙面,让建筑有放大的效果,又让房屋仿佛漂浮在水上,别有一番风情。


减少隔断,营造宽敞感
呼应"模糊化"的空间基调,室内起居区也减少不必要的隔断墙,方便屋主自由来去,同时也让视线得以延伸,呈现更宽阔、宽敞的感受;而且搭配使用清透的玻璃隔断,还顺势将室外景致引入室内,既有美化作用,也让整体环境更显大气。


天然建材,赋予有机质感
另外值得一提的是,本案大量采用柚木、玄武岩地板、玻璃、铝等天然建材,加上简约的造型设计,赋予空间有机、干净、现代的气息,飘散着低调的奢华质感。

California / villa

▲ 一层

▲ 二层
这户位在洛杉矶的别墅,屋主希望全年都能沉浸在南加州的温煦气候里,因此在设计上除了尽量让每个房间都有相连的户外空间,并且使用大量木质建材装修,让视觉上就能感受到温暖气息,除此之外还有以下的设计巧思:
打破室内外的界线
为了打造一个温暖的居住空间,善用南加州的阳光就是设计上的一大重点;因此故意打破室内、外的场域界线,让空间内、外能融合在一起,借此让自然光线自由穿梭于空间里,并在花园的围绕下,勾勒出舒适、宁静的气息,宛若是热带家园。

于是会发现,客厅、厨房、游戏室、泳池等主要的聚会空间,使用了大量的玻璃移门,除了将绿意引入室内,而且一旦移门开启之后,室内、室外就变成连贯的大空间,空间感更宽敞!

纳入三座小花园
大量运用绿植装饰是这套别墅的特点之一;这当中除了围墙外的花圃,设计师更在围墙内打造了三个规模、功能各不相同的小花园。

其中,大花园营造出舒适的自然气息,也为周边环境注入热带氛围;至于夹杂于建筑物里的小花园,则提供屋主一处品尝宁静时光的角落。


木建材纾缓建筑沉重感
这户别墅采用钢筋混凝土打造,但为了化解水泥的冰冷、沉重气息,设计师在空间中加入了木材元素,通过木质饰面板等建材,减轻了建筑的视觉重量,同时也呼应围绕建筑四周的植物,营造出一种温暖、治愈的气息。


以上2个案例虽然都属于现代风格的别墅户型,却在不同的设计概念之下,呈现的样貌大异其趣,一个简约利落、一个温暖舒适,但不论是哪一种氛围,都仔细规划了空间布局,不仅摆脱"大而无当"的陷阱,更充分展现出别墅应该有的低奢感。
夫妻设计426m²独栋别墅,富豪邻居都羡慕!直呼:卖我吧
减轻家务活不只扔衣服!沙发、鞋子、餐具都要一并丢,日子才舒心
#别墅#u0002#装修效果案例#u0002#室内设计#u0002#装修设计#u0002#装修那些事#u0002







